Skip to content

BETTY 2.0x2.0m Log Cabin

Bespoke Enquiry

Discover the Art of Customisation with Our Bespoke Log Cabin Service

In the realm of homebuilding, the concept of a one-size-fits-all solution fades in comparison to the allure of personalisation. Recognising this, we proudly introduce our Bespoke Log Cabin Service, an avenue where your dreams and our craftsmanship meet to create something truly exceptional. Our service is designed for those who seek not just a house, but a home that reflects their unique style, needs, and aspirations.

In stock

Loading image:
Bespoke Log Cabins

All of our log cabins can be customise to your liking. Get in touch for customisations.

Description

Introducing the Betty 2.0x2.0m Log Cabin by Northern Log Cabins: Your Garden Oasis 🌿

Elevate your outdoor space with the Betty 2.0x2.0m Log Cabin, a charming sanctuary nestled in your garden. This exquisite garden house provides approximately 3 square meters of additional space, shielded by a sleek modern gable roof, allowing you to create your personal haven in the heart of nature.

Crafted from 28 mm thick walls of untreated Nordic spruce, this log board garden house offers robust protection from the elements, ensuring that you can enjoy the comfort of your outdoor space even on less favourable days. The stainless steel door sill enhances the durability of the cabin, providing peace of mind for years to come.


Key Features:

- Approximately 3 m² of additional space 
- 28 mm thick walls of untreated Nordic spruce
- Sleek modern gable roof design
- Stainless steel door sill for added durability
- 5-year guarantee for peace of mind

Northern Log Cabins offers versatile and practical log cabins that go beyond being just garden houses. Transform the Betty 2.0x2.0m Log Cabin into your ideal storage space for tools, firewood, or garden furniture. Alternatively, create your personal retreat for cosy barbecues or a welcoming guest house for visitors.

Embrace a quality lifestyle in the heart of nature with the Betty 2.0x2.0m Log Cabin by Northern Log Cabins. Make this garden house your second home, your oasis away from the hustle and bustle - a place where you can relax, unwind, and connect with the tranquillity of nature. Bring the essence of the outdoors into your lifestyle with this exceptional log cabin.

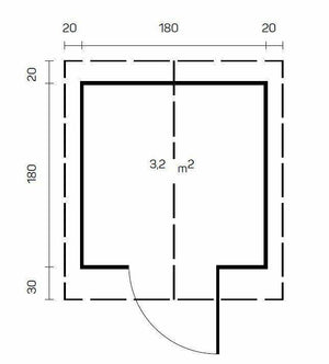
Log Cabin Specifications

  • External Dimensions (W x D): 200 x 200 cm
  • Wall Dimensions (W x D): 180 x 180 cm
  • Log thickness: 28 mm
  • Side wall height: 183 cm
  • Ridge Height: 223 cm
  • Roof surface: ca 5,52 m2
  • Roof boards: 18 mm
  • Front overhang: 30 cm
  • Roof tilting angle: 24°
  • Floor boards: 18 mm
  • Treated bearers: 45 x 70 mm
  • Floor surface: ca 3,49 m2
  • Wooden door: 840 x 1730 mm
  • Package Weight: 375 kg
  • Package Size: 240x108x44 cm

Terms & Conditions / Guarantee

Installation plans for this log cabin are available for download upon purchase. We recommend you check if your building is covered by your household insurance in case of storm damage etc. We provide the constructions of all of our products with a 5-year warranty that starts from the product’s purchase date. In order to offer the best service, all of our products are always packaged in UV-resistant plastic film and our products are also protected during transport against potential knocks by the respective bands and timber protection elements. All of our products have been produced in the cold and icy Northern European climate from the dry spruce that has been grown in ecologically managed forests of Sweden, Finland, Russia or the Baltic States (Estonia, Latvia and Lithuania).

Google Reviews

Loading image: Floor Insulation 25mm - Northern Log Cabins Floor Insulation 25mm - Northern Log Cabins
Notice: Pricing Updates

At Northern Log Cabins, we strive to provide the best quality and value for our customers. Due to ongoing fluctuations in material costs and market conditions, we have temporarily removed prices from our website to ensure you receive the most accurate and up-to-date quotes.

Don’t worry—getting a price for your dream log cabin is still quick and easy! Simply fill out our enquiry form, and our friendly team will provide you with a personalised quote tailored to your needs.

Why Choose Us?

Top Quality Materials Used

We utilise the finest materials available, ensuring superior quality in our products.

Free Delivery Available

Free Delivery across most parts of the UK

Interest Free Finance Available

Take advantage of our INTEREST-FREE Step Payment Plans for all log cabins.

Installation service available

We offer installation on every cabin and garden product

Huge Range Available

We offer a wide selection of log cabins, ensuring that you have plenty of options to choose from.

Friendly and Helpful Sales team

Welcoming and Supportive Sales Team

Loading image:

Customise Any Cabin With Our Free Bespoke Log Cabin Service

Northern Log Cabins is a leading provider of tailor-made log cabins, ensuring that every detail meets the customer's specific needs and preferences. This bespoke approach to cabin construction allows customers to have a unique and personalized log cabin, whether it's a quaint 1-bedroom cabin or a spacious 4-bedroom cabin. With their expertise in timber construction, Northern Log Cabins guarantees the highest quality of craftsmanship and design for each project. As a result, customers can trust that their custom log cabin will be a lasting testament to the company's commitment to excellence.

Learn more
Loading image:

Log Cabin Showsite

At Northern Log Cabins we offer a log cabin showsite where customers can visit and see their range of log cabins in person. This allows you to experience the quality and craftsmanship of Northern Log Cabins' log cabins firsthand and get a better sense of the available options.

Our showsite offers an immersive experience that aids customers in making informed decisions about their prospective log cabins.

Unit 5, Poplar Farm, Tealby Road, Market Rasen, Lincolnshire, LN8 3UL

Visit Us

Our Log Cabin Builds

A Stunning Log Cabin Art Studio for Will Mellor by Northern Log Cabins

When Will Mellor, star of 2 Pints of Lager and a Packet of Crisps and co-host of the Two Pints Podcast, needed a space to unleash his creativity, he turned to Northern Log Cabins. Together, we created a stunning 3.5m x 2m log cabin art studio that blends functionality with style. Featuring 70mm logs, anthracite doors and windows, and an insulated roof and floor, this bespoke studio is the perfect retreat for any artist. Discover how we brought Will’s vision to life and how you can create your own dream garden studio.

2 Log Cabins for the Sue Ryder Hospice

Explore Northern Log Cabins’ impactful project for Sue Ryder Hospice. Two insulated log cabins for hospice use, measuring 4.5m x 3m each, deliver comfort and functionality with quality craftsmanship.
Back to top