Skip to content

DANIEL 5.0x4.0 Log Cabin

Bespoke Enquiry

Discover the Art of Customisation with Our Bespoke Log Cabin Service

In the realm of homebuilding, the concept of a one-size-fits-all solution fades in comparison to the allure of personalisation. Recognising this, we proudly introduce our Bespoke Log Cabin Service, an avenue where your dreams and our craftsmanship meet to create something truly exceptional. Our service is designed for those who seek not just a house, but a home that reflects their unique style, needs, and aspirations.

In stock

Loading image:
Bespoke Log Cabins

All of our log cabins can be customise to your liking. Get in touch for customisations.

Description

Welcome to Northern Log Cabins, where quality meets functionality with the DANIEL 5.0x4.0 Log Cabin. Transform your outdoor space into a versatile home gym or retreat with this spacious cabin that offers endless possibilities.

🏠 Expand your living space with the generous 18 metres squared floor area, providing ample room for your fitness routines, yoga sessions, or serene relaxation. Crafted from premium 100% Nordic Spruce, this cabin boasts a stunning aesthetic that blends seamlessly with any garden decor, inviting you to spend more time outdoors.

✨ Key Features:
- Double-glazed windows for insulation and comfort
- Openable windows in both directions for ventilation
- Doors and windows made from extra-dry laminated timber
- High-quality 18mm thick profile board for the ceiling and floor
- Autoclave impregnated timber foundation beams for durability
- Complete with storm bars and fixation equipment for easy installation

Utilise this log cabin not just as a home gym, but also as a tranquil home office, creative studio, or a cosy garden retreat. Embrace the convenience of having your personal sanctuary just steps away from your home, saving you time and money on commuting to external facilities.

Invest in the DANIEL 5.0x4.0 Log Cabin from Northern Log Cabins and bring a touch of elegance and functionality to your outdoor space. Enjoy the versatility, quality, and charm that this cabin offers, adding value and character to your home.

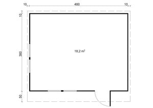
Log Cabin Specifications

  • BOHLE External Dimensions (W x D): 500 x 400 cm
  • Wall Dimensions (W x D): 480 x 380 cm
  • Log thickness: 40 mm
  • Side wall height: 211 / 245 cm
  • Ridge Height: ca 254 cm
  • Floor surface: ca 18 m2
  • Treated bearers: 45 x 70 mm
  • Floor boards: 18 mm
  • Roof tilting angle: 5°
  • Front overhang: 50 cm
  • Roof surface: ca 23 m2
  • Roof boards: 18mm
  • Volume: ca 40 m3
  • Double glazed window: 2 x 1530 x 990 mm
  • Double glazed door: 1 x 840 x 1955 mm
  • Package Weight: ca 1970 kg
  • Package Size: 540 x 108 x 72 cm

Terms & Conditions / Guarantee

Installation plans for this log cabin are available for download upon purchase. We recommend you check if your building is covered by your household insurance in case of storm damage etc. We provide the constructions of all of our products with a 5-year warranty that starts from the product’s purchase date. In order to offer the best service, all of our products are always packaged in UV-resistant plastic film and our products are also protected during transport against potential knocks by the respective bands and timber protection elements. All of our products have been produced in the cold and icy Northern European climate from the dry spruce that has been grown in ecologically managed forests of Sweden, Finland, Russia or the Baltic States (Estonia, Latvia and Lithuania).

Google Reviews

Loading image: Floor Insulation 25mm - Northern Log Cabins Floor Insulation 25mm - Northern Log Cabins
Notice: Pricing Updates

At Northern Log Cabins, we strive to provide the best quality and value for our customers. Due to ongoing fluctuations in material costs and market conditions, we have temporarily removed prices from our website to ensure you receive the most accurate and up-to-date quotes.

Don’t worry—getting a price for your dream log cabin is still quick and easy! Simply fill out our enquiry form, and our friendly team will provide you with a personalised quote tailored to your needs.

Why Choose Us?

Top Quality Materials Used

We utilise the finest materials available, ensuring superior quality in our products.

Free Delivery Available

Free Delivery across most parts of the UK

Interest Free Finance Available

Take advantage of our INTEREST-FREE Step Payment Plans for all log cabins.

Installation service available

We offer installation on every cabin and garden product

Huge Range Available

We offer a wide selection of log cabins, ensuring that you have plenty of options to choose from.

Friendly and Helpful Sales team

Welcoming and Supportive Sales Team

Loading image:

Customise Any Cabin With Our Free Bespoke Log Cabin Service

Northern Log Cabins is a leading provider of tailor-made log cabins, ensuring that every detail meets the customer's specific needs and preferences. This bespoke approach to cabin construction allows customers to have a unique and personalized log cabin, whether it's a quaint 1-bedroom cabin or a spacious 4-bedroom cabin. With their expertise in timber construction, Northern Log Cabins guarantees the highest quality of craftsmanship and design for each project. As a result, customers can trust that their custom log cabin will be a lasting testament to the company's commitment to excellence.

Learn more
Loading image:

Log Cabin Showsite

At Northern Log Cabins we offer a log cabin showsite where customers can visit and see their range of log cabins in person. This allows you to experience the quality and craftsmanship of Northern Log Cabins' log cabins firsthand and get a better sense of the available options.

Our showsite offers an immersive experience that aids customers in making informed decisions about their prospective log cabins.

Unit 5, Poplar Farm, Tealby Road, Market Rasen, Lincolnshire, LN8 3UL

Visit Us

Our Log Cabin Builds

A Stunning Log Cabin Art Studio for Will Mellor by Northern Log Cabins

When Will Mellor, star of 2 Pints of Lager and a Packet of Crisps and co-host of the Two Pints Podcast, needed a space to unleash his creativity, he turned to Northern Log Cabins. Together, we created a stunning 3.5m x 2m log cabin art studio that blends functionality with style. Featuring 70mm logs, anthracite doors and windows, and an insulated roof and floor, this bespoke studio is the perfect retreat for any artist. Discover how we brought Will’s vision to life and how you can create your own dream garden studio.

2 Log Cabins for the Sue Ryder Hospice

Explore Northern Log Cabins’ impactful project for Sue Ryder Hospice. Two insulated log cabins for hospice use, measuring 4.5m x 3m each, deliver comfort and functionality with quality craftsmanship.
Back to top