
MIKKO 6.2x4.2m Log Cabin
Bespoke Enquiry
Discover the Art of Customisation with Our Bespoke Log Cabin Service
In the realm of homebuilding, the concept of a one-size-fits-all solution fades in comparison to the allure of personalisation. Recognising this, we proudly introduce our Bespoke Log Cabin Service, an avenue where your dreams and our craftsmanship meet to create something truly exceptional. Our service is designed for those who seek not just a house, but a home that reflects their unique style, needs, and aspirations.
In stock

Bespoke Log Cabins
All of our log cabins can be customise to your liking. Get in touch for customisations.
Description
Mikko 6.2x4.2m Log Cabin: Your Spacious Retreat in Nature
Experience the allure of outdoor living with the Mikko 6.2x4.2m Log Cabin from Northern Log Cabins. This spacious and charming cabin offers a perfect blend of functionality and style, creating a serene retreat for various purposes in your garden or backyard. Whether you desire a guesthouse, a home office, a hobby room, or simply a cosy sanctuary to relax, the Mikko log cabin is designed to elevate your outdoor lifestyle and provide a comfortable escape amidst nature.
Key Features of the Mikko Log Cabin:
- Superior Craftsmanship: Constructed from high-quality Nordic spruce for durability and natural appeal.
- Generous Space: With external dimensions of 6.2x4.2m, there's ample room for customisation and comfort.
- Functional Design: Featuring double-glazed windows and doors for insulation, security, and natural light.
- Easy Assembly: Comes with detailed assembly instructions and all necessary hardware for convenient setup.
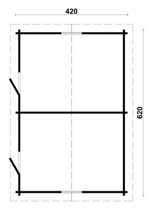
Log Cabin Specifications:
- External Dimensions (W x D): 620 x 420 cm
- Wall Thickness: 44mm
- Side Wall Height: 205 cm
- Ridge Height: 260 cm
- Roof Surface Area: Approximately 28.7 m²
- Double Glazed Windows: 3 x 1380 x 910 mm
- Double Glazed Doors: 1 x 1410 x 1930 mm
- Package Weight: 1200 kg
- Package Size: 650 x 110 x 60 cm
Create your ideal retreat with the Mikko 6.2x4.2m Log Cabin—a space where functionality, style, and tranquillity harmonize to offer you the perfect outdoor escape.
Log Cabin Specifications
Terms & Conditions / Guarantee
Installation plans for this log cabin are available for download upon purchase. We recommend you check if your building is covered by your household insurance in case of storm damage etc. We provide the constructions of all of our products with a 5-year warranty that starts from the product’s purchase date. In order to offer the best service, all of our products are always packaged in UV-resistant plastic film and our products are also protected during transport against potential knocks by the respective bands and timber protection elements. All of our products have been produced in the cold and icy Northern European climate from the dry spruce that has been grown in ecologically managed forests of Sweden, Finland, Russia or the Baltic States (Estonia, Latvia and Lithuania).
Google Reviews

Notice: Pricing Updates
At Northern Log Cabins, we strive to provide the best quality and value for our customers. Due to ongoing fluctuations in material costs and market conditions, we have temporarily removed prices from our website to ensure you receive the most accurate and up-to-date quotes.
Don’t worry—getting a price for your dream log cabin is still quick and easy! Simply fill out our enquiry form, and our friendly team will provide you with a personalised quote tailored to your needs.

Bespoke Log Cabins
Northern Log Cabins is a leading provider of tailor-made log cabins where every detail meets the customer's specific needs and preferences.
Award-Winning Quality
Our bespoke approach to cabin construction allows customers to have a unique and personalised log cabin, whether it's a quaint 1-bedroom cabin or a spacious 4-bedroom cabin.
Log Cabin Showsite
When you're looking for a log cabin, it's important to see every detail. Come visit our Lincolnshire Showroom and experience the beauty of these stunning structures in person! We have many different sizes available from which can create an ideal dwelling or retreat that suits your needs perfectly. Our range of cabins are from small to large and varied styles so there's something for everyone! We offer friendly staff who can give advice on your dream home design or assist you with finding what type suits best according the space available at this site

Visit Our Log Cabin Showroom

Customise Any Cabin With Our Free Bespoke Log Cabin Service
Northern Log Cabins is a leading provider of tailor-made log cabins, ensuring that every detail meets the customer's specific needs and preferences. This bespoke approach to cabin construction allows customers to have a unique and personalized log cabin, whether it's a quaint 1-bedroom cabin or a spacious 4-bedroom cabin. With their expertise in timber construction, Northern Log Cabins guarantees the highest quality of craftsmanship and design for each project. As a result, customers can trust that their custom log cabin will be a lasting testament to the company's commitment to excellence.

Log Cabin Showsite
At Northern Log Cabins we offer a log cabin showsite where customers can visit and see their range of log cabins in person. This allows you to experience the quality and craftsmanship of Northern Log Cabins' log cabins firsthand and get a better sense of the available options.
Our showsite offers an immersive experience that aids customers in making informed decisions about their prospective log cabins.
Unit 5, Poplar Farm, Tealby Road, Market Rasen, Lincolnshire, LN8 3UL
Our Log Cabin Builds
Case Study: Embracing Sustainable Luxury – A 2-Bedroom Residential Log Home in the UK Countryside
Read more
A Stunning Log Cabin Art Studio for Will Mellor by Northern Log Cabins
Read more
2 Log Cabins for the Sue Ryder Hospice
Read more