Skip to content

PEDRO-E 5.1x5.1m Log Cabin

Bespoke Enquiry

Discover the Art of Customisation with Our Bespoke Log Cabin Service

In the realm of homebuilding, the concept of a one-size-fits-all solution fades in comparison to the allure of personalisation. Recognising this, we proudly introduce our Bespoke Log Cabin Service, an avenue where your dreams and our craftsmanship meet to create something truly exceptional. Our service is designed for those who seek not just a house, but a home that reflects their unique style, needs, and aspirations.

In stock

Loading image:
Bespoke Log Cabins

All of our log cabins can be customise to your liking. Get in touch for customisations.

Description

Pedro E 5.1x5.1m Log Cabin: Your Elegant Oasis for Comfort and Creativity

Indulge in luxury and creativity with the Pedro E 5.1x5.1m Log Cabin from Northern Log Cabins. This sophisticated cabin embodies a seamless fusion of traditional elegance and modern design, offering an elegant oasis where comfort and creativity converge effortlessly. Whether you picture it as a refined home office, a serene reading sanctuary, or a spacious art studio, the Pedro E Log Cabin is meticulously designed to elevate your outdoor living experience and provide a tranquil haven for relaxation and inspiration.

Key Features of the Pedro E 5.1x5.1m Log Cabin:

  • Exquisite Design: Meticulously crafted from high-quality Nordic spruce wood for lasting durability and aesthetic appeal.
  • Spacious Layout: External dimensions of 5.1m x 5.1m provide ample space for versatile uses and personalized configurations.
  • Abundant Light: Multiple windows and a door flood the interior with natural light, creating a bright and inviting ambiance.
  • Versatile Functionality: Perfect for a luxurious home office, cosy reading nook, inspiring art studio, or personal retreat with an air of sophistication.
  • Effortless Assembly: Designed for easy setup, ensuring a smooth construction process for immediate enjoyment of your elegant oasis.

Log Cabin Specifications:

  • Material: High-quality Nordic spruce wood
  • Dimensions: External measurements of 5.1m x 5.1m
  • Wall Thickness: 28mm for optimal insulation and structural strength
  • Floor Area: Approximately 25.92m² with 18mm thick floor boards
  • Windows and Door: Includes double-glazed windows and a door for energy efficiency and aesthetic charm

Step into a realm of elegance and inspiration with the Pedro E 5.1x5.1m Log Cabin—an exquisite oasis where traditional charm and modern design unite to create a serene space for comfort and creative endeavours.

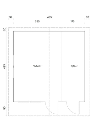
Log Cabin Specifications

  • BOHLE External Dimensions (W x D): 505 x 505 cm
  • Wall Dimensions (W x D): 485 x 485 cm
  • Log thickness: 70mm
  • Side wall height: 217 cm
  • Ridge Height: 302 cm
  • Roof surface: ca 36 m²
  • Roof boards: 18 mm
  • Front overhang: 90 cm
  • Roof tilting angle: 19°
  • Treated bearers: 60 x 70 mm
  • Floor surface: 23,5 m²
  • Volume: ca 57,6 m3
  • Double glazed window: 2 x 1530 x 990 mm
  • Double glazed door: 2 x 840 x 1955 mm
  • Package Weight: ca 2800 kg
  • Package Size: 505 x 120 x 65 cm / 600 x 120 x 63 cm

Terms & Conditions / Guarantee

Installation plans for this log cabin are available for download upon purchase. We recommend you check if your building is covered by your household insurance in case of storm damage etc. We provide the constructions of all of our products with a 5-year warranty that starts from the product’s purchase date. In order to offer the best service, all of our products are always packaged in UV-resistant plastic film and our products are also protected during transport against potential knocks by the respective bands and timber protection elements. All of our products have been produced in the cold and icy Northern European climate from the dry spruce that has been grown in ecologically managed forests of Sweden, Finland, Russia or the Baltic States (Estonia, Latvia and Lithuania).

Google Reviews

Loading image: Floor Insulation 25mm - Northern Log Cabins Floor Insulation 25mm - Northern Log Cabins
Notice: Pricing Updates

At Northern Log Cabins, we strive to provide the best quality and value for our customers. Due to ongoing fluctuations in material costs and market conditions, we have temporarily removed prices from our website to ensure you receive the most accurate and up-to-date quotes.

Don’t worry—getting a price for your dream log cabin is still quick and easy! Simply fill out our enquiry form, and our friendly team will provide you with a personalised quote tailored to your needs.

Why Choose Us?

Top Quality Materials Used

We utilise the finest materials available, ensuring superior quality in our products.

Free Delivery Available

Free Delivery across most parts of the UK

Interest Free Finance Available

Take advantage of our INTEREST-FREE Step Payment Plans for all log cabins.

Installation service available

We offer installation on every cabin and garden product

Huge Range Available

We offer a wide selection of log cabins, ensuring that you have plenty of options to choose from.

Friendly and Helpful Sales team

Welcoming and Supportive Sales Team

Loading image:

Customise Any Cabin With Our Free Bespoke Log Cabin Service

Northern Log Cabins is a leading provider of tailor-made log cabins, ensuring that every detail meets the customer's specific needs and preferences. This bespoke approach to cabin construction allows customers to have a unique and personalized log cabin, whether it's a quaint 1-bedroom cabin or a spacious 4-bedroom cabin. With their expertise in timber construction, Northern Log Cabins guarantees the highest quality of craftsmanship and design for each project. As a result, customers can trust that their custom log cabin will be a lasting testament to the company's commitment to excellence.

Learn more
Loading image:

Log Cabin Showsite

At Northern Log Cabins we offer a log cabin showsite where customers can visit and see their range of log cabins in person. This allows you to experience the quality and craftsmanship of Northern Log Cabins' log cabins firsthand and get a better sense of the available options.

Our showsite offers an immersive experience that aids customers in making informed decisions about their prospective log cabins.

Unit 5, Poplar Farm, Tealby Road, Market Rasen, Lincolnshire, LN8 3UL

Visit Us

Our Log Cabin Builds

A Stunning Log Cabin Art Studio for Will Mellor by Northern Log Cabins

When Will Mellor, star of 2 Pints of Lager and a Packet of Crisps and co-host of the Two Pints Podcast, needed a space to unleash his creativity, he turned to Northern Log Cabins. Together, we created a stunning 3.5m x 2m log cabin art studio that blends functionality with style. Featuring 70mm logs, anthracite doors and windows, and an insulated roof and floor, this bespoke studio is the perfect retreat for any artist. Discover how we brought Will’s vision to life and how you can create your own dream garden studio.

2 Log Cabins for the Sue Ryder Hospice

Explore Northern Log Cabins’ impactful project for Sue Ryder Hospice. Two insulated log cabins for hospice use, measuring 4.5m x 3m each, deliver comfort and functionality with quality craftsmanship.
Back to top